Mieszkanie blisko Lotniska i Mordoru – od zaraz!

Mieszkanie na wynajem
3 000,00 PLN , Pow. 41,50 m2
Drukuj ofertę
Drukuj ofertę
Typ nieruchomości:
Mieszkanie
Powierzchnia:
41,50 m2
Typ transakcji:
wynajem
Liczba pokoi:
1
Lokalizacja:
Warszawa Włochy Okęcie , Żwirki i Wigury
Rok budowy:
1956
Piętro:
1 na 3
Numer oferty:
2192/849295
Cena za m2:
72,29 PLN
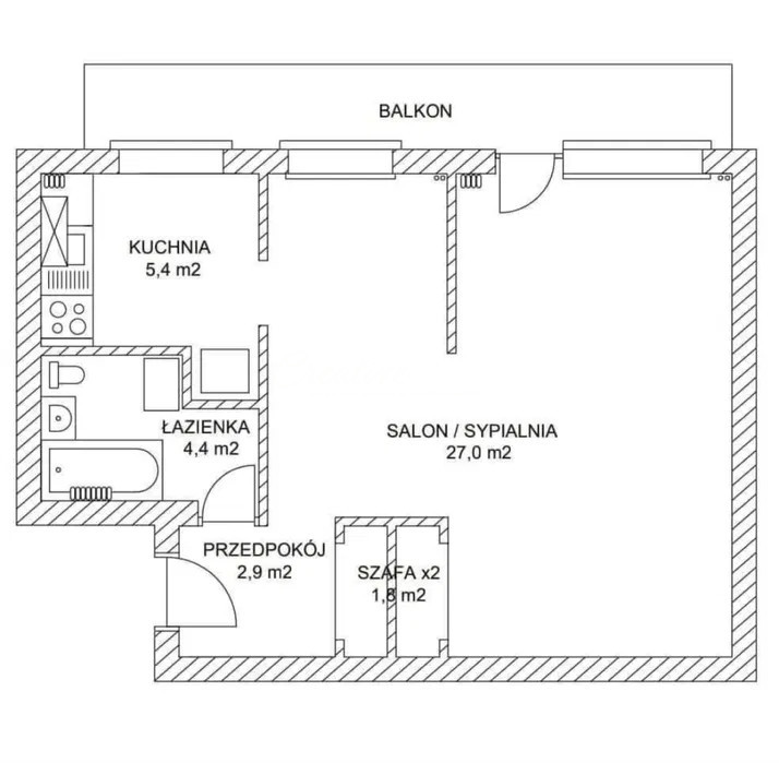
Zapraszamy do zapoznania się z ofertą klimatycznego mieszkania na wynajem, położonego w kamienicy w dzielnicy Włochy-Okęcie. Nieruchomość znajduje się na zielonym osiedlu i posiada duży balkon od strony wewnętrznego patio, co zapewnia ciszę i prywatność. To super propozycja dla singla lub pary pracującej w okolicach Lotniska Chopina lub na tzw. „Mordorze” (Służewiec) - świetna lokalizacja pozwala zaoszczędzić czas na codziennych dojazdach.

Mieszkanie o powierzchni 41,5 m² składa się z:
Przestronnego salonu pełniącego funkcję sypialni,
Oddzielnej kuchni,
Łazienki,
Przedpokoju,
Dużego balkonu (prawie 7 m²),
Piwnicy (ok. 9 m²) do dyspozycji najemcy.

Lokal jest gotowy do zamieszkania i urządzony w klimatycznym stylu pasującym do charakteru kamienicy. Układ typowy dla tego typu budownictwa - duży, jasny salon oraz kompaktowe kuchnia i łazienka. Na podłodze parkiet, który podkreśla wyjątkowy charakter wnętrza.

W salonie znajduje się wygodna kanapa, stylowe meble oraz stół dla czterech osób, a także wyjście na duży balkon - idealne miejsce do relaksu. Dodatkowym atutem jest możliwość własnej aranżacji przestrzeni, np. pod kącik do pracy lub dodatkowe miejsce do spania.
Kuchnia z oknem, wyposażona w podstawowe sprzęty (lodówka, piekarnik, kuchenka gazowa) oraz zastawę i nowy komplet garnków.
Łazienka wyposażona w wannę z funkcją prysznica.
Dodatkowo do dyspozycji najemcy piwnica.

Warunki najmu:

• Czynsz najmu: 3.000 zł
• Czynsz administracyjny: 950 zł
• Dodatkowo: opłaty licznikowe za prąd i gaz - wg zużycia
• Kaucja: wymagana


Pełna oferta dostępna mailowo - serdecznie zapraszam do kontaktu 7 dni w tygodniu. Oferta na wyłączność.

Powyższa oferta jest wyłącznie informacją handlową i nie stanowi oferty w myśl art. 66 §1 Kodeksu cywilnego. Opis oraz zdjęcia przedstawione w ofercie są własnością agencji Creative Grupa Nieruchomości i są objęte prawem autorskim. Kopiowanie, przetwarzanie oraz rozpowszechnianie tych materiałów w całości lub w części bez zgody autora jest zabronione.
Nieprawidłowy adres E-mail